2021-11-30氣候潮濕,家里怎樣防霉 家用防潮空氣凈化除濕機
在氣候濕度較高的環境中,家里經常會發霉,特別是各類衣物等生活用品。衛生間和廚房相對更加潮濕的地方,墻壁尤其墻角位置更是霉菌頻繁出現的地方。家里各處都有可能成為霉菌的集中據點,一旦發霉就額外鬧心。處理不當的話,會造成經濟上的損失,甚至威脅到家人的身體健康。因此,家里的防霉工作萬萬不能大意。采取怎樣的措...
了解詳情工業除濕機廠家
微信:133-6050-3273
手機:133-6050-3273
郵箱:
地址:廣東深圳坪山區青松西路8號鴻合科技園

在氣候濕度較高的環境中,家里經常會發霉,特別是各類衣物等生活用品。衛生間和廚房相對更加潮濕的地方,墻壁尤其墻角位置更是霉菌頻繁出現的地方。家里各處都有可能成為霉菌的集中據點,一旦發霉就額外鬧心。處理不當的話,會造成經濟上的損失,甚至威脅到家人的身體健康。因此,家里的防霉工作萬萬不能大意。采取怎樣的措...
了解詳情
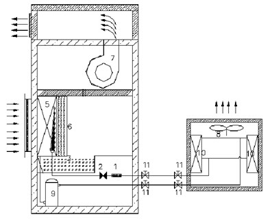
調溫除濕機用蒸發器來給空氣降溫除濕,并回收系統的冷凝熱,彌補空氣中因為冷卻除濕時散失的熱量,是一種高效節能的除濕方式,已經廣泛應用于國防工程、人防工程、煙草及石化行業、地鐵車站、航天領域凈化工程、實驗室、電訊器材室、檔案室、食品房、制藥或膠片車間、特種玻璃制造、糧食、木材等的除濕干燥和高濕空間的除濕...
了解詳情
航空工業中的濕度控制和水分去除對于保護整體和零件至關重要。航空工業中的應用非常多樣化,包括露點控制和相對濕度。例如,需要40%的相對濕度(RH)以消除在飛機的生產,儲存和操作期間的腐蝕,腐敗和損壞。對于其他應用,可能需要通過控制露點以防止腐蝕來確保不形成冷凝。我們在這個行業遇到的一些問題包括:航空電...
了解詳情
現在,很多業主在進行地面裝修的時候會考慮用木地板。木地板有溫潤柔和、自然宜人、隔音、腳感舒適、防滑安全等優點,被越來越多的消費者所喜愛。選用木地板,經常會出現木地板起翹的問題。木地板起翹最重要的一個原因是安裝環境過于潮濕。如果房間內濕度過高,就會導致地板發生不規則的膨脹從而起翹。因此,不從根本上解決...
了解詳情
有很多支氣管炎患者在夏天溫暖、潮濕的季節,不知不覺地患支氣管炎,因為夏天是支氣管炎的高峰期,我們必須采取預防措施。步驟/方法:1、夏天,很容易有一些有害的東西,如霉菌等。如果我們不注意它,我們就會患支氣管炎。我有一個朋友不知道支氣管炎。2、在平時的專家也告訴我們,在夏天是一個高發病率的季節,一些疾病...
了解詳情
一個可能會損害你的健康和房子的問題現有地下室的水分問題非常普遍,但往往不被理解或妥善處理。在一個很少使用的地下室和上面的生活空間分開,這可能不會有很大的問題。但是,明尼蘇達州的大多數地下室都通過管道或其他開口與房屋的其余部分相連。另外,地下室越來越多地被用作完成的生活和臥室空間。在這些情況下,潮濕問...
了解詳情
工業除濕機除濕工藝流程圖讓我們來了解下一個除濕器的技術。除濕機工作流程轉輪除濕器的工作過程可分為幾個部分:預冷/預熱(可選部分)-轉輪除濕-后冷/后熱(可選部分)預冷/預熱:使用冷凍水降低空氣的溫度,使空氣在冷卻過程中,相對濕度逐漸接近飽和狀態,在要求的溫度下,高于空氣溫度的飽和狀態會沉淀出多余的水...
了解詳情
隨著人們生活水平的不斷提高,人們對游泳、桑拿房等休閑場所的環境提出了更高的要求。控制游泳館、水療中心等室內空氣的溫濕度是一個難題。一座中型游泳池每天蒸發出的水量約有1噸,一個4平方米的水療中心每小時蒸發近6升的水,這相當于20人進行激烈騎自行車運動。高濕空氣不僅使人感到悶熱不舒服,也會對館內建筑及裝...
了解詳情
我們在使用防爆除濕機時,要做好養護工作,只有做好養護工作才可以延長防爆除濕機的使用壽命。1.長時間不使用防爆除濕機時,除濕機若經長途或劇烈搬動時,要將機體靜置2-3小時后在接入電源使用,以避免損壞壓縮機,運行前先將門窗關好避免潮濕的空氣進入影響除濕的效果,使用中也要減少門窗開合的次數。做好防護措施,...
了解詳情
室內泳池室都是一個非常潮濕的地方。室內游泳池區域的水面蒸發,因此增加了空氣中的濕度。高濕度不僅造成財產損失,也給人們健康帶來很多問題。當游泳池的水溫升至游泳溫度時,多余的水分會釋放到室內空氣中。濕氣潤濕墻壁,在玻璃窗上形成水凝結,依附在館中的各種設施。水分中含有氯或溴消毒劑,并且會腐蝕所接觸的各種物...
了解詳情
在電子和高新技術產業中,精密的空氣濕度控制至關重要。電子產品是當下消費者們接觸最為廣泛的產品,并且隨著科技的不斷發展電子產品也在不斷更新換代。目前,國內電子廠房要求越來越嚴格,尤其是溫濕度。干燥空氣(相對濕度小于40%)是不良導體,因為存在靜電累積的可能,靜態電位甚至可以達到幾千伏特。如果過于干燥則...
了解詳情
倉庫,對一個企業是非常重要的。倉庫管理似乎很簡單,但還是需要很細心的。倉庫管理工作除了做好出入庫的賬演登記外,防火防潮的工作也很重要。防火比較簡單,禁止火源即可。但是,應該如何防潮呢?倉庫中很多原材料、產品都不能受潮,受潮會導致產品質量下降,給企業帶來不必要的經濟損失,因此倉庫對空氣濕度有很高的要求...
了解詳情
儀表著陸系統的潮濕問題今天,機場正在擴張并變得越來越擁擠。飛機乘客的交通和飛機起降迅速增加。由于通信和空中導航系統的技術升級,即使在能見度有限的條件下,如霧,雨和吹雪等苛刻條件下,飛行員現在也可以著陸和起飛飛機安全。隨著技術的進步,今天,儀表著陸系統(ILS)已成為通信和空中導航中最重要的元素干燥空...
了解詳情
鋰電池的水分控制控制鋰離子電池制造的最重要因素是它們必須在干燥室中生產,其濕度條件非常嚴格,低至1%至10%RH。鋰電池應用在電子,汽車,太陽能,電信,電力,國防,醫療保健等多種行業中快速增長。鋰電池的大規模生產和水分是導致該行業發展的主要威懾力量。不受控制的濕度的影響鋰電池受到不受控制的溫度和濕度...
了解詳情
實驗室是進行教學和科研的重要基地,各種重要的實驗需要在干爽潔凈的環境中進行,各種精密的儀器也需要得到妥善的保護。無論是是醫藥化工實驗室或科學實驗室,對濕度都會有其確切的需求。高濕度會使很多化學試劑的形態和性質發生改變。有些化學試劑具有潮解性,晶體自發吸收空氣中水分子,在固體表面形成飽和溶液。高濕度還...
了解詳情
冷庫是指用人工手段,創造與室外溫度或濕度不同的環境,也是對食品、液體、化工、醫藥、疫苗、科學試驗等物品的恒溫恒濕貯藏設備。冷庫應注意防止相對濕度過高,那么,冷庫濕度過高怎么除濕呢?冷庫濕度過高的原因:1、防潮隔氣層不連續,或者隔熱施工有漏洞,導致庫外的空氣進入到冷庫中,在庫房內部遇冷凝露,導致庫房內...
了解詳情
多功能移動式除濕機:很多人都知道南方地區氣候潮濕,雨水又濕又重,尤其是在每年的春夏時節,經常會遇到連綿不斷的陰雨天,空氣潮濕或濕度過大是再所難免的,很多人的家里不知不覺就會"中招"了,電視機、音響、電腦受潮頻頻出現"罷工",書籍、衣服、鞋子等受潮,充斥著一股難...
了解詳情
除濕機是可以放置在家中的房間內以除去空氣中多余水分的工具。選擇除濕機時,選擇合適的尺寸對于您的除濕機的性能對于該房間或區域的性能有多重要。例如,濕度高的大型地下室可能需要大型或多臺除濕機;而較小的浴室可能只需要一臺小型除濕機。繼續閱讀,了解如何根據您的需求選擇除濕機。使用濕度計獲得您想要除濕的房間或...
了解詳情
地鐵是鐵路運輸的一種形式,指是沿著地面鐵路系統的形式逐步發展形成的一種用電力牽引的快速大運量城市軌道交通模式。為了配合修筑的環境,并考量建造及營運成本,地鐵可能會在城市中心以外地區轉成地面或高架路段。地鐵是涵蓋了城市地區各種地下與地上的路權專有、高密度、高運量的城市軌道交通系統。地鐵是一種很方便、快...
了解詳情
夏天凹印生產要用除濕機控濕:我國南方地區夏天的特點是高溫高濕,這沒人喜歡,工業生產也不例外,對于那些以溶劑型凹印油墨為主的軟包裝企業來說更是如此,因為高溫高濕會影響因素質量,高溫導致油墨容易快速揮發,而高濕有容易導致油墨黏度改變,不管是哪一樣,都會造成軟包裝凹印生產不順。1、在高溫環境下進行印刷生產...
了解詳情